Da war Jemand schneller:
Diese Immobilie ist reserviert!
Dieses sanierungsbedürftige Haus mit Geschichte, Charakter und Potenzial wartet darauf, mit neuen Ideen gefüllt zu werden. Ob liebevoll modernisiert, kreativ umgebaut oder gänzlich neu geplant: Hier liegt der Grundstein für ein persönliches Wohnprojekt – ruhig, zentral und voller Möglichkeiten.
1863
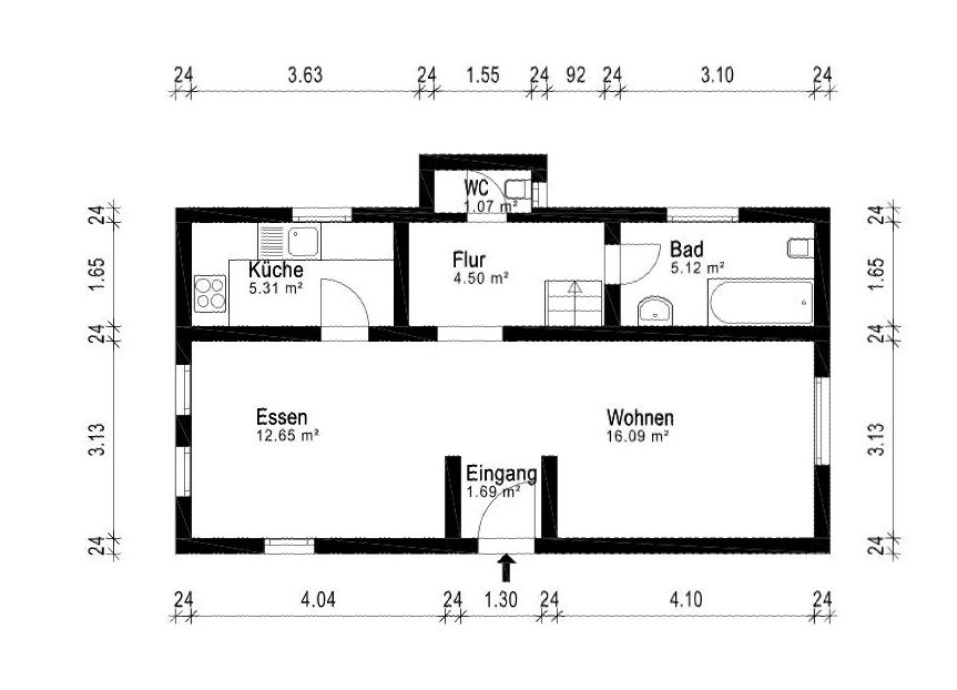
75,60 m²
4,5 Zimmer
220.000 €
Beschreibung
In beliebter Halbhöhenlage von Stuttgart-Hedelfingen wartet dieses kompakte Einfamilienhaus aus dem Jahr 1863 auf neue Ideen und tatkräftige Hände. Auf einem etwa 179 m² großen Grundstück gelegen, bietet es mit einer Wohnfläche von rund 75,60 m² und einer gut nutzbaren Raumaufteilung vielfältige Möglichkeiten – vom liebevoll sanierten Eigenheim mit historischem Charakter bis hin zur Neubauoption nach Rücksprache mit dem Bauamt.
Das Haus wurde im Laufe der Jahrzehnte mehrfach erweitert und zuletzt im Jahr 1969 um eine Garage ergänzt. Besonders das offen gestaltete Erdgeschoss mit direktem Zugang zur Terrasse und zum Garten schafft eine angenehme Verbindung zwischen Innen- und Außenraum. Durch die rückwärtige Begrenzung mit einem fußläufigen Gemeindeweg entsteht eine ruhige, geschützte Wohnsituation ohne Durchgangsverkehr auf der Gartenseite.
Die bestehenden Räume überzeugen trotz der geringen Höhen – teils unter zwei Metern – durch ihre charmante Grundstruktur und bieten spannende gestalterische Möglichkeiten, insbesondere im Dachgeschoss. Hier ließe sich durch eine Öffnung zum darüberliegenden, nicht ausgebauten Dachboden zusätzliches Volumen und ein modernes Raumgefühl schaffen.
Energieskala





